

East River Building Project





October 2025 Update
Giving campaign:
- $2,700,000+ in commitments and gifts made.
- $1,085,000 in money received.
- 181 households have made commitments or have given.
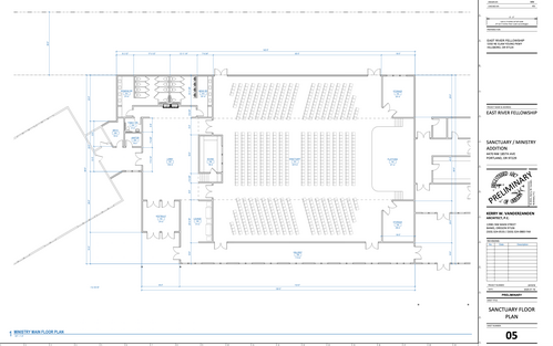
- Floor plans for new buildings finalized.
- Waiting for final approval to submit for permits by the end of year.
Ezekiel Project
What We've Done
- Redesigned four kids' classrooms
- Painted the inside of the building
- Repaired & re-striped the parking lot
- Changed signage
- Installed a cross in the front
- Removed diseased trees from property
- Made building repairs
- Installed security cameras & an alarm system
- Serviced & replaced the HVAC systems
- Installed new water fountain & repaired plumbing
- Added a coffee cart
- Completed sound & lighting in sanctuary
- The portable unit is repaired & turned into three additional KidLife classrooms
- The existing container has become storage
What We're Working On
- After the planning department approves plans, we will apply for permits
- The projected date to break ground is Spring 2026
How you can participate:
Pray, obey, give
Trust God to provide
Volunteer for work days
Pray, obey, give
Trust God to provide
Volunteer for work days
Contact ezekielproject@deeperlives.com for more information.
Ready to make your commitment?

